Villa de nueva construcción de 3 dormitorios y 2 baños, que se completará a fines de junio, en Canada del la Lena.

  • PT3121
  • Murcia, Cañada de la Leña, Costa Calida
Precio: €319.995 / £274,780

Descripcion Vivienda

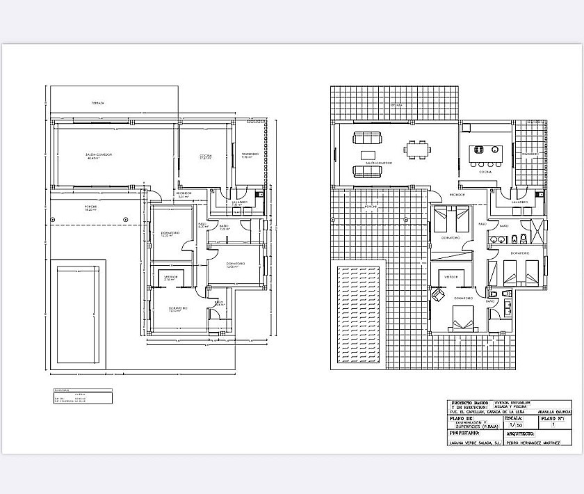
Nos complace presentar esta villa moderna a estrenar con una superficie construida de 202 m², garaje para dos vehículos, piscina de 8 x 4 m y una amplia terraza en una parcela totalmente vallada de 5100 m².

La villa cuenta con tres dormitorios, dos baños (uno en suite), un amplio salón y cocina de concepto abierto con dos terrazas, una descubierta y otra cubierta.

Se encuentra a poca distancia del pueblo de Cañada de la Lena, con un buen bar/restaurante, en una ubicación excelente con muy buenas conexiones por carretera y hermosas vistas.

La casa cuenta con suministro de agua y electricidad independiente, además de fosa séptica individual, y cuenta con todos los permisos y autorizaciones de construcción.

Previsión de finalización: finales de junio de 2025.

Para más información sobre esta propiedad, no dude en contactarnos.

Acerca de Cañada de la Lena.

Cañada de la Lena se encuentra en una zona de gran encanto natural en el término municipal de Abanilla (Murcia), entre las sierras de Barinas, Espada y Quibas. El pueblo se encuentra a 10 minutos de Pinoso, junto a la carretera a Fortuna y cerca de Algueña. El aeropuerto de Alicante y las playas están a unos 50 minutos.
El pueblo, anteriormente conocido como Los Martínez, fue fundado por esta familia de leñadores. La economía del pueblo se basa en la agricultura, la ganadería y la producción vinícola, y también se beneficia de la industria del mármol.
La pequeña iglesia del pueblo, dedicada a la Virgen del Carmen, se encuentra en la plaza del pueblo, junto con dos bares y restaurantes. La fiesta mayor se celebra el 16 de julio en honor a la Virgen del Carmen. La gastronomía del pueblo se compone de platos típicos murcianos y valencianos, basados ​​en ensaladas, caracoles, gazpacho, gachamigas y carne.

Detalles Vivienda

Piscina: Privada
Jardín: Privado
Orientación: Sur
Vistas: Vistas a la montaña
Parking: Garaje
Distancia Aeropuerto: 45 mins
Distancia Playa: 45 mins
Distancia Cuidad: 45 mins
Distancia Golf: 30 mins
Distancia Restaurante: 10 mins

Extras Vivienda

checkInternet banda ancha y teléfono
checkElectricidad de la red
checkAgua de la red
checkParcela vallada
checkGaraje
checkTerraza
checkFosa séptica

Video

Localizacion

Contacto

Viviendas Similares

Townhouse en Monovar
Nuevo
CC0519
  • bed icon5
  • bath icon3
  • house iconm2
Monovar
260.000€
Impresionante villa de obra nueva con piscina
RAFA2047
  • bed icon3
  • bath icon2
  • house icon150m2
Alicante, Pinoso
287.000€
Impresionante Villa con Piscina en La Zarza
Vendido
RB3858
  • bed icon5
  • bath icon2
  • house icon320m2
Murcia, La Zarza
299.995€
Estoy de acuerdo

Utilizamos cookies propias y de terceros para realizar análisis de uso y de medición de nuestra web para mejorar nuestros servicios. Si continua navegando, consideramos que acepta su uso. Para obtener más información aquí.

WhatsApp